浅草7分 敷地38.7坪 平日・土日も見学できます 東駒形
-
ローンシミュレーションこの物件を購入した場合の、月々の支払い価格の一例です。借り入れを保証するものではございません。
- 返済期間
-
- 金利
-
- ボーナス時の増額(1回分)
-
- 借入金額:
-
- 頭金:
-

- 毎月の返済額:
(※元利均等方式 金利5.00%まで ※返済年数5~50年まで入力できます)
(※ボーナスは年2回で計算しています。1000万円まで入力できます)
(※物件購入時、その他諸費用が発生する場合がございます)
情報の見方担当者のコメント 小野寺恒太

- ご覧頂きありがとうございます! とりあえず見てみたいでもOK!
ご希望の日時で受け付けております! 当日のご見学も可能です!
お問い合わせは【047-404-5133】受付中!
ポイント・特徴
即日見学できます!一度に周辺の物件や環境も含めてご案内させていただきます♪ ほとんどの物件はご紹介できますのでお気軽にお問合せくださいませ! 資料請求だけでもお気軽にどうぞ!
物件概要
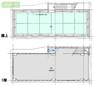
【売地】 物件番号:101115381 情報更新日:2026年02月05日 次回更新予定日:2026年02月19日所在地 東京都墨田区東駒形2丁目 交通 価格 2億9,000万円 土地の敷金/保証金 -/- 借地料/借地期間 -/- 土地面積(坪数) 128.14㎡(38.76坪) 坪単価 748.19万円 私道負担面積/セットバック -/無 高圧線下面積 - 傾斜地部分面積 - 路地状敷地 - 土地権利 所有権 接道状況 一方(東 公道 5.7m) 都市計画 市街化区域 用途地域 近隣商業 建築条件 無 地目/地勢 宅地/平坦 建ぺい率 80% 容積率 300% 総区画数 1区画 販売区画数 1区画 国土法届出要否 不要 その他の法令上の制限 - 取引態様 専任媒介 現況 古家有 引渡時期 即時 引渡条件 現況渡 最適用途 事業用地 物件番号 101115381 取引条件の有効期限 2026年02月19日 設備条件 - 陽当り良好
- 閑静な住宅地
- 都市ガス
- 公営水道
- 公共下水
- 電気有
備考 おすすめポイント
●浅草駅徒歩7分、通勤・通学・事業拠点として利便性の高い立地です。
●観光地至近ながら落ち着いた住環境です♪
●休日は散策や食べ歩きも楽しめる立地が魅力的です。
●都心へのアクセスも良好で利便性の高いエリアです。
●現在、倉庫が建っていて倉庫や事業用としても使用できます。
■■■ ご見学・ご案内で『クオカードプレゼント!』 対象物件です!■■■
即日見学できます!お気軽にお問合せくださいませ!
資料請求だけでもお気軽にどうぞ!
取扱会社 - 株式会社みんなの家
- 千葉県船橋市湊町1丁目21-21
- TEL:047-404-5133
- 千葉県知事 (3) 第16711号
- (一社)千葉県宅地建物取引業協会
※地図上に表示される物件の位置は付近住所に所在することを表すものであり、実際の物件所在地とは異なる場合がございます。
物件お問い合わせ
- 掲載物件数
-
件
- 会員物件数
-
件
同じエリアの売地























