当社で現地販売会開催中 間取りは自由設計 建築条件付き土地 開発分譲地 新鎌ヶ谷 全13区画 9区画の過去掲載物件情報現況の確認はお気軽にお問い合わせください。
| 所在地 | 千葉県鎌ケ谷市南初富2丁目 | 建築条件 | 有 |
|---|---|---|---|
| 交通 | |||
| 設備条件 |
|
||
※建築条件付き土地とは、その土地に建築する建物の建築請負契約が、 一定期間内に成立することを条件として売買される土地のことをいいます。 建築請負契約成立に向けて設計プランを協議するため、 土地購入者が自己の希望する建物の設計協議をするために必要な相当の期間の交渉期間が設定され、 その期間内で希望を満たすプランが実現できるかどうかにより結論を出します。 なお、この期間は概ね3ヶ月程度とされています。 納得のいくプランが出来ず、建築請負契約が成立しない場合、土地売買契約は白紙に戻り、 土地契約にかかった代金(土地代金、手付金など)は名目のいかんに関わらず、全て返却されます。
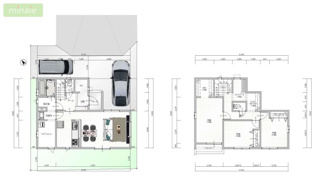
【外観パース】建物プラン例 建物価格1800万円、建物面積99.36m2






